Year:
2024
Location:
Ahmedabad & Surat
Category:
Commercial | Retail

Overview
Brand-Forward Mobility Showcase
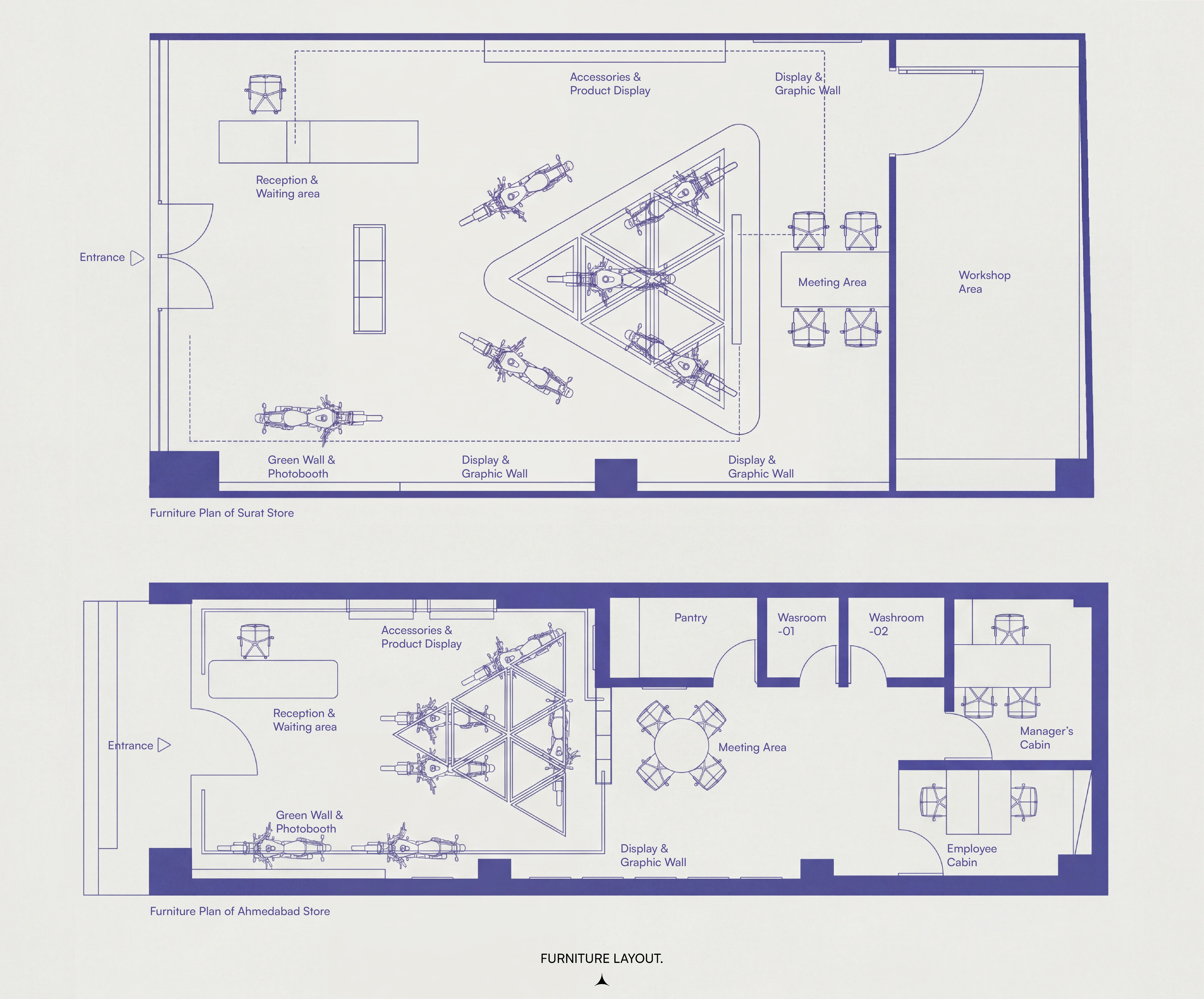
ABZO Motors required dual flagship showrooms (1200 sq.ft each) in Surat and Ahmedabad that translate their electric vehicle brand identity into immersive retail experiences. The design needed to balance product display clarity with hospitality, creating environments where customers engage with sustainable mobility as lifestyle choice rather than transaction.
How to design a showroom that elevates electric bikes from commodity to aspiration?
Traditional vehicle showrooms prioritize product density over experience. The challenge was creating inviting retail spaces within compact 1200 sq.ft footprints—accommodating bike displays, accessories, meeting areas, and reception without visual clutter. The design had to communicate ABZO's "Runs on Confidence" ethos while incorporating biophilic elements that reinforce the sustainability narrative, all while maintaining brand consistency across two locations.
Solution
The design employs ABZO's signature red as spatial anchor: glossy facade cladding and feature walls establish immediate brand recognition. Clean white interiors provide neutral backdrop, allowing bikes to read as hero objects.A suspended geometric lighting installation—custom triangular LED fixtures—floats above the display zone, creating focused studio-quality illumination. This theatrical lighting directs attention to products while adding contemporary sculptural presence. Wall-mounted accessory displays maintain clean floor space. Strategic greenery introduces biophilic softness, balancing technical product with natural warmth. Glass partitions define meeting spaces while maintaining openness. The result is a showroom functioning as brand statement—where electric mobility meets hospitality.










*This is a small selection of my work.
© 2026.









